Kraaijvanger Architects
Blaak 40
3011 TA Rotterdam
The Netherlands
A museum as a total experience
The museum is designed as a destination, an overall experience: arriving at the park, overlooking the meadows, sensing the refined atmosphere of the early twentieth-century mansion, walking along the sand dunes, enjoying the many perspectives of the estate. In this setting, the museum is an exhibition platform for the largest private collection of contemporary art in the Netherlands. In addition to exhibitions of the museum’s own collection, there are temporary exhibitions and permanent works built into the museum, such as Richard Serra's Open Ended and a room by James Turrell. The client’s most important goal was to create a museum that serves art and does not focus attention on itself, but nevertheless excels in perfection and beauty.


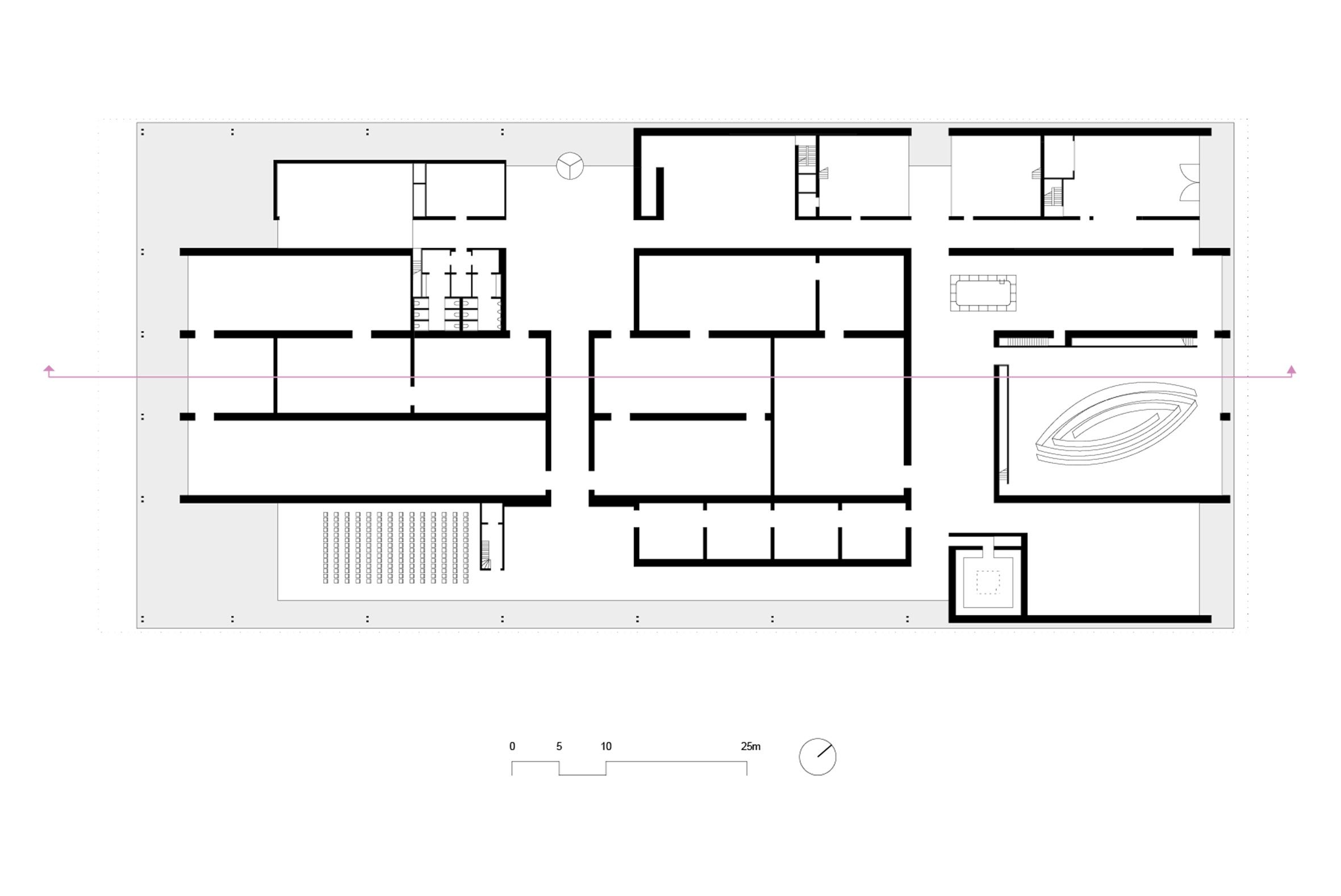
An open structure of a series of walls, parallel to the dune edge
The design of Museum Voorlinden consists of an open structure comprising a series of walls that run parallel to the edge of the sand dunes. These ‘servicing walls’ integrate everything needed to keep the rooms empty and clean: construction, installations, electronics, doors. The transverse walls are secondary and are, in principle, movable. The design opens up the museum to its surroundings and creates a direct visual link with the country house. The three-part division of the programme is also visible in the floor plan. Visitors entering are already on the sight line towards the park. The three middle bays are exhibition halls. The two outer zones contain facilities such as the shop, the library, expedition, workshops and an auditorium. The entire building is covered by a ‘light roof’, which is raised above the Serra sculpture; visitors can ascend via a walkway to admire the work from above.
Revolutionary interplay of natural and artificial light



The museum’s main theme is daylight. Not the usual northern light, but reflected southern light: light that is alive, that changes when the conditions outside change. This is in keeping with the idea of a private collection; after all, at home the light constantly changes, too. 115,000 aluminium tubes cut at a slant into the light roof, which appears to hover over the building, reflect indirect sunlight. For the first time ever, an ideal combination with LED lighting has been found, resulting in ‘uplights’ that almost imperceptibly compensate for any shortage of daylight. The exceptional light roof is the icon of the museum. The ‘invisible electronics’ theme has been implemented down to the very smallest detail, for example the emergency exit signs that are invisibly incorporated in the stucco and that only light up in the event of a calamity.

The design of Museum Voorlinden can be seen as one big experiment: inventing and creating the unknown, with a demanding but inexperienced client who on many occasions quoted a statement his architect once made: ‘There’s no such thing as “impossible”.’ So no construction behind a 5.26-m-high glass façade that has to bear an almost 11-m roof span. Solution: extremely thin load-bearing wind styles (so thin, however, that they have to be tested especially at Delft University of Technology). No dilatations in walls that are over 20 m. Special innovations for the combination of openness, fire resistance, first-class burglary protection and normal exterior dimensions. The invisibility of all electrical installations. And of course the light roof, which started out as a clear, conceptual sketch, but required endless testing and development to achieve the seemingly simple, emblematic result. This high degree of precision and the complete integration of constructions and installations was set up in BIM and coordinated by us. The BIM model also made it possible to discuss the design and details in 3D with a client who, to our surprise, could not read floor plans.
How to consistently implement the minimalist detailing
One of the design’s important lessons: in order to implement minimalist detailing consistently, the floor plan and cross section have to strictly adhere to a basic module. In the floor plans, this is a board width of 200 mm; in height it is a stone size of 400 mm. Every measurement is a multiple of these.
Almost everyone who approaches Museum Voorlinden for the first time stares at it in awe for a moment. Five years of designing and building have resulted in a museum of exceptional quality. Although the building does not actually attempt to impress, its spatiality and dimensions are always surprising. The silence in the landscape is palpable. Art and daylight, and what daylight! At the same time, it is so very natural. Everything is attention. It has a great, proud modesty. Authorities praise the ‘maniacally high level of finishing and obsessive attention to detail’. But even visitors who can not immediately grasp the finer points of the design sense its precision and austerity.
Watch broadcast of the Dutch art program 'Kunstuur' on Museum Voorlinden




One of the design’s important lessons: in order to implement minimalist detailing consistently, the floor plan and cross section have to strictly adhere to a basic module. In the floor plans, this is a board width of 200 mm; in height it is a stone size of 400 mm. Every measurement is a multiple of these.
Almost everyone who approaches Museum Voorlinden for the first time stares at it in awe for a moment. Five years of designing and building have resulted in a museum of exceptional quality. Although the building does not actually attempt to impress, its spatiality and dimensions are always surprising. The silence in the landscape is palpable. Art and daylight, and what daylight! At the same time, it is so very natural. Everything is attention. It has a great, proud modesty. Authorities praise the ‘maniacally high level of finishing and obsessive attention to detail’. But even visitors who can not immediately grasp the finer points of the design sense its precision and austerity.
Watch broadcast of the Dutch art program 'Kunstuur' on Museum Voorlinden



Architectenweb wrote a nice article about the project and the opening of the museum. Read the full article here.

