Kraaijvanger Architects
Blaak 40
3011 TA Rotterdam
The Netherlands
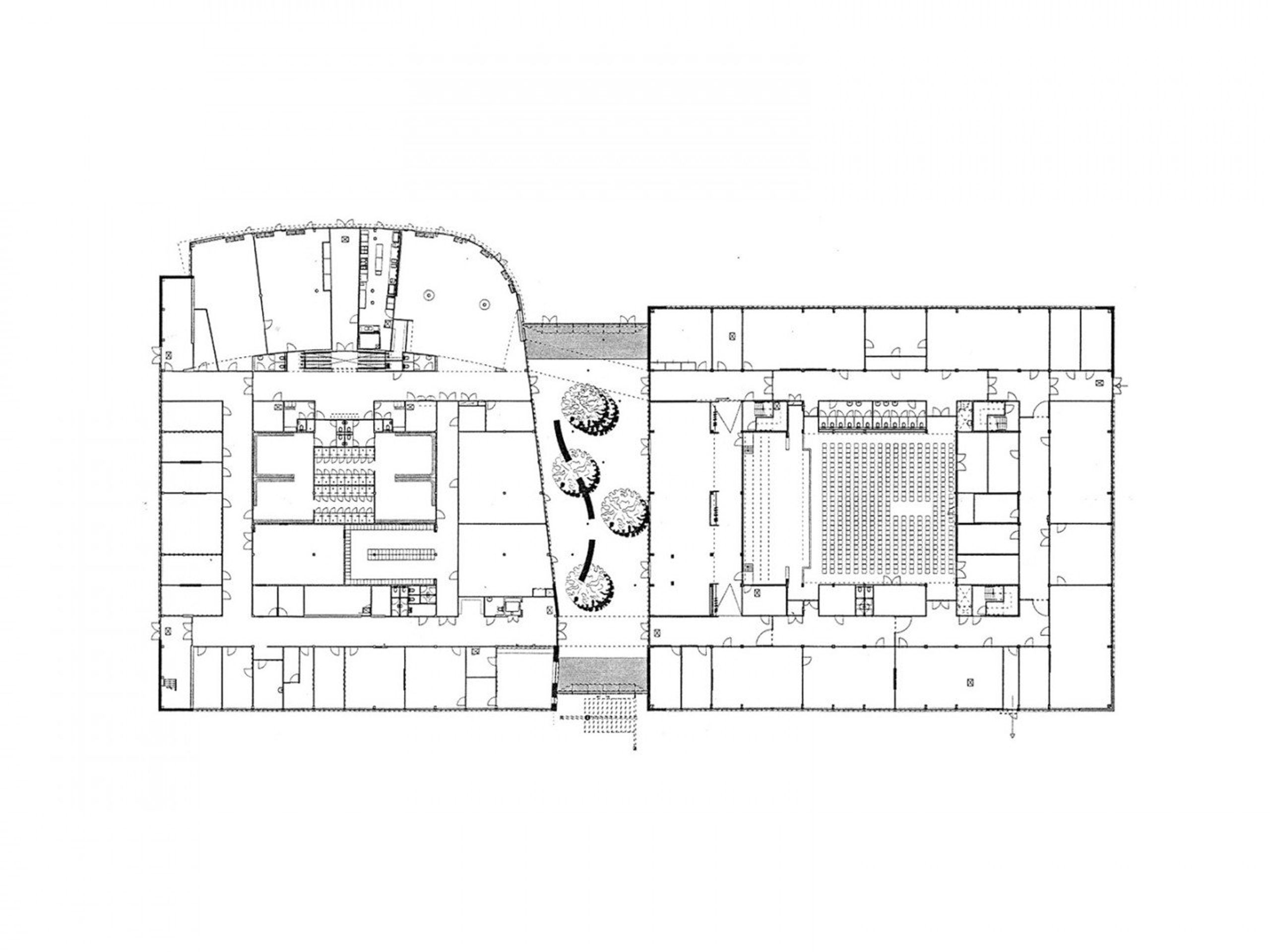
The square-shaped part of the existing school is thoroughly renovated. In addition, a new section is laid out around an indoor sports hall, replacing former premises that had become obsolete. Between the two sections there is the greenhouse, a glass-covered area with a semi-outdoor climate. This area, which also serves as the central entrance, provides a view to a green zone alongside the nearby railway line.




